Перший поверх – це бетонний простір з затишною атмосферою, яка досягається завдяки високоякісним м'яким меблям та дерев'яним елементам. В центрі будинку розташована кухня. На верхніх рівнях продумано 2 роздільні дитячі кімнати та господарська спальня.
Читайте також Яку спліт-систему вибрати: огляд базових характеристик
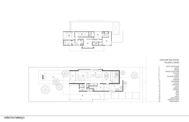
Концепція екстер'єру
Як виглядає новий бруталізм в архітектурі / Фото Home Designing
Як виглядає новий бруталізм в архітектурі / Фото Home Designing
Як виглядає новий бруталізм в архітектурі / Фото Home Designing
Як виглядає новий бруталізм в архітектурі / Фото Home Designing
Прохолодну споруду оточує великий сад. Завдяки мінімальній кількості дверей та вікон, дім нагадує неприступну фортецю. Водночас відсутність додаткових елементів на фасаді, допомагає створити цілісний скульптурний об'єкт.
Присутні елементи вдало поєднуються між собою. Так, наприклад, дерев'яні ворота доповнюються ґратчастим вікном. Тому здається, що зовні немає нічого зайвого.
Як виглядає новий бруталізм в архітектурі / Фото Home Designing
Дерев'яні ґратчасті ворота відкриваються навколо своєї осі. Попри їх масивність, для відкриття достатньо одного легкого поштовху.
Як виглядає новий бруталізм в архітектурі / Фото Home Designing
Як виглядає новий бруталізм в архітектурі / Фото Home Designing
Інтер'єр
Бруталізм в інтер'єрі / Фото Home Designing
Бруталізм в інтер'єрі / Фото Home Designing
Бруталізм в інтер'єрі / Фото Home Designing
Бруталізм в інтер'єрі / Фото Home Designing
Темний вестибюль з низькою стелею веде до високого, яскраво освітленого приміщення. Це і є головною частиною домівки. Тут розміщено кухню та вітальню з відкритим плануванням. Замість декору – панорамні вікна, які відкривають вид на великий внутрішній сад.
Багаторівнева підлога створює чітке зонування між втопленою зоною відпочинку, проміжною кухнею і обідньою зоною на подіумі.
Бетонні стіни доповнені шафами для зберігання та мультимедійними блоками для зберігання техніки.
Бруталізм в сучасній архітектурі – Home Designing
Більше фото дому в стилі бруталізм














