Будинок, спроєктований каліфорнійською архітектурною студією Craig Steely Architecture, розташований на ділянці в Атертоні. Це приміська територія зі зрілими деревами та великою кількістю сучасних новобудов, прихованих за високими парканами.
Цікаво Як правильно обрати кондиціонер для дому: практичні поради
Архітектура будинку була спрямована на "стирання кордонів між внутрішнім і зовнішнім", що, за намірами проєктантів, повинно створити безперервний потік між лісом, внутрішнім двориком та самою резиденцією.
Дім оточений лісом / Фото World Architecture
Ділянка огороджена високою огорожею / Фото World Architecture
Вид спрямований в небо та на верхівки дерев / Фото World Architecture
Особливим побажанням клієнтки стало облаштування якомога більшої кількості функціональних зон просто неба. Студія врахувала кліматичні параметри ділянки – помірний, майже середземноморський клімат Каліфорнії був би ідеальним для цього рішення, проте завдання ускладнилося параметрами ділянки. Довга та вузька територія, зі всіх боків оточена типовими заміськими будинками, не дозволила реалізувати цей план на повну.
Внутрішній двір / Фото World Architecture
Внутрішні житлові приміщення / Фото World Architecture
Спальня / Фото World Architecture
Щоб вийти з цієї ситуації, архітектори вирішили зосередити увагу не на горизонтальному виді, а на краєвиді, який відкривається знизу догори. Відтак студія спроєктувала високу огорожу, яка оточує житлові приміщення та направляє погляд на верхівки дерев та блакитне небо.
Вітальня / Фото World Architecture
Зручні розсувні двері з'єднують зону закритого та відкритого просторів / Фото World Architecture
Вигнуті форми стіни огортають житлове приміщення з відкритим плануванням та стирають межі між домом та природою. В цьому допомагають й зручні розсувні двері.
Травертин на підлозі та кедр на стінах дозволили перенести природу всередину домівки. Стіни повністю закривають небажані забудови та гарантують замовниці максимальну приватність.
По всьому периметру дому встановлені панорамні вікна / Фото World Architecture
Центральний вхід / Фото World Architecture
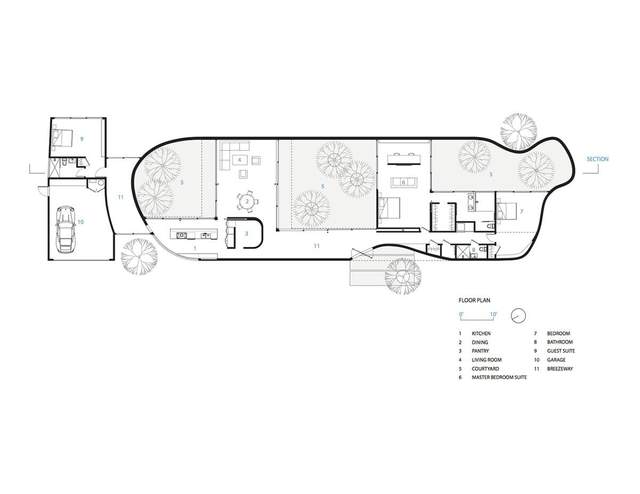
Усередині будинок містить відкриту кухню, їдальню-вітальню, комору, спальню власниці та місце відпочинку для гостей дому, санвузол та хол. Також на ділянці розташований гараж.
План ділянки:













