8 июня, 13:44
5

Старая архитектура со стильными решениями: как дизайнеры осовременили квартиру в Киеве – фото

Источник:

behance.net

Квартира в Киеве захватывает своими функциональными решениями и фактурными сочетаниями. Дизайнеры ONE MORE BURO создали идеальное пространство для творческой пары, которая хотела сохранить атмосферу старой архитектуры и добавить современных и практичных решений.

Квартира принадлежит супругам, которые работают в художественной и деловой средах. Они хотели сохранить неповторимую атмосферу исторического здания, где находится их квартира. При этом пара решила добавить немного современной атмосферы, которая соответствовала бы их динамичному образу жизни.

Читайте также  Стильная и лаконичная квартира во Львове: фото проекта, что вдохновляет

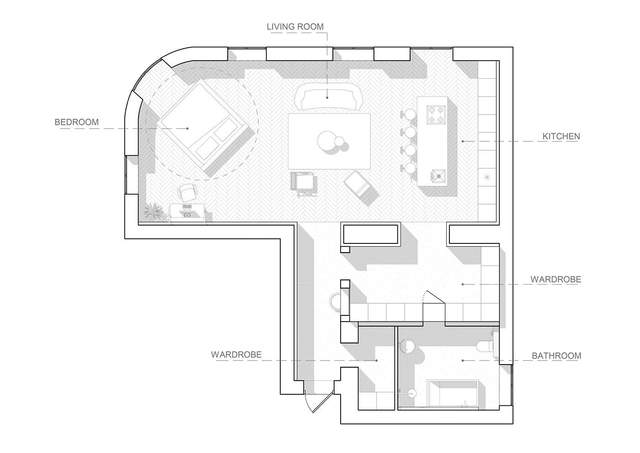
Основная идея заключалась в том, чтобы в полной мере использовать пространство, не разделяя его на комнаты. Это дает больше свободы в выборе функционального назначения для каждого угла. Дизайнеры стремились подчеркнуть открытость пространства и небольшое количество деталей. Зоны дополняют друг в друга, объединяясь в единственное полезное пространство, одновременно удовлетворяя все потребности владельцев.

Планирование квартиры / Фото behance.net

Одним из принципов также была визуальная и функциональная простота пространства вместе со спокойной цветовой палитрой. В то же время мы сосредоточились на сохранении старых элементов и материалов, поскольку владельцы хотели сделать из квартиры чистый холст, чтобы наполнить его важными вещами в течении жизни, – рассказали авторы проекта.

Входная зона / Фото behance.net

Коридор включает несколько других входов и частичный вид на общую зону. Отсюда можно увидеть шкаф с большим количеством секций, одна из которых – это дверь в прачечную, что оборудована стиральной машиной, сушилкой и бойлером.

Арочные проемы / Фото behance.net

Мы решили поставить растения на дополнительный уровень, чтобы придать этому пространству немного живости. Освещение не мешает наблюдать за циклами естественного освещения, что возможно благодаря большому количеству высоких окон. В зоне шкафа также есть световой портал, который обеспечивает свет для растений и создает атмосферу для вечеринок, – объяснили дизайнеры.

Коридор / Фото behance.net

Поскольку кухня является частью общей зоны, идея заключалась в том, чтобы полностью ее скрыть. Большинство мебели, таких как духовка, холодильник и посудомоечная машина, скрытые за фасадами. Дизайнеры достигли этого эффекта, увеличив стандартную глубину кухни.

Акцентные барные стулья / Фото behance.net

В этой квартире есть множество уникальных предметов, показывающие характер пары, которая предпочитает вещи с историей. Одним из примеров является 100-летние кресла, изготовленные Пьером Жаннере. Мы нашли их на блошином рынке в Париже и полностью отреставрировали в Киеве, – говорят ONE MORE BURO.

Остров с варочной поверхностью и кухонной мойкой / Фото behance.net

Пара любит устраивать частные вечеринки дома, поэтому барные стулья всегда будут полезными. При правильном освещении (как розовые и фиолетовые растительные светильники), квартира превращается в изысканное пространство, что выглядит не хуже, чем любое модное заведение.

Паркет елочкой и микроцемент / Фото behance.net

Владельцы хотели сохранить напольное покрытие квартиры, но это удалось сделать только частично. Отреставрировать паркет не получилось, но его замена никак не повлияла на общую концепцию, поскольку квартира выглядит вполне современно благодаря гипсокартонным конструкциям.

Зона гостиной с большими полуциркульными окнами / Фото behance.net

Окна – это то, что ни мы, ни наши клиенты не хотели менять. Они выглядели потрепанными, но все же действительно впечатляющими и сыграли ключевую роль в создании атмосферы, к которой мы стремились. Мы применили технику повторения форм окон и для дверных проемов, чтобы создать сбалансированное пространство, — рассказали дизайнеры.

Акцентная картина в зоне гостиной / Фото behance.net

Также установили освещение вдоль всех конструкций из гипсовых плит, которое выполняет несколько функций. Практическая функция заключается в вечернем освещении квартиры, а декоративная – в сосредоточении визуального внимания на оригинальном покрытии.

Трендовые кресла в стиле модернизм, которым сто лет / Фото behance.net

Чтобы добавить индивидуальности общей комнате, мы нанесли на стену красочный, но все же минималистичный рисунок. Другие стены свободны от деталей, владельцы имеют возможность повесить картины или эскизы, которые они соберут со временем, – отметили авторы проекту.

Общее пространство квартиры / Фото behance.net

Рабочее место достаточно скромное, поскольку хозяева не проводят много времени за работой дома. Им оно может понадобиться, чтобы нарисовать какие-то эскизы или написать статью.

Рабочее место / Фото behance.net

Спальная зона окружена окнами, что дает хозяевам возможность наслаждаться видом на старый город. Штора в форме овала подчеркивает мягкие линии пространства и сохраняет приватность спальной зоны.

Спальная зона / Фото behance.net

С кровати открывается прекрасный вид на город / Фото behance.net

Штора позволяет создать интимную атмосферу для владельцев / Фото behance.net

Вход в ванну находится за шкафом, визуально скрывая комнату от гостей. Ванная комната создана по такому же принципу, как и сама квартира: меньше деталей, но максимальная функциональность. Мебель также в минималистичном стиле.

Вход в ванную скрытый дверцами шкафы / Фото behance.net

Полезно  Как освежить интерьер старого дома: фото до и после ремонта

Стильная бетонная раковина / Фото behance.net

Плитка оливкового цвета в сочетании с "родными" кирпичными стенами – вау! / Фото behance.net

Сантехника черного цвета / Фото behance.net

Связанные темы: